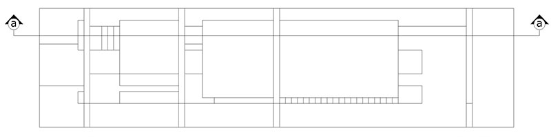
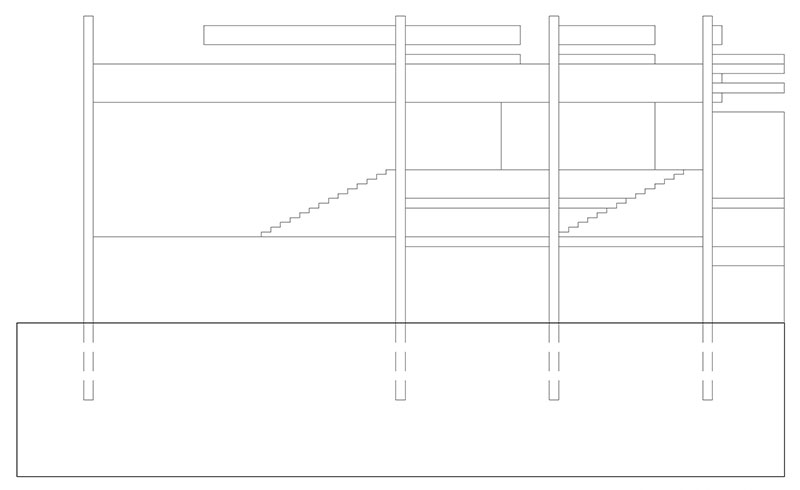
Cinematic Extrusion
Design Studio – Undergraduate Level – Fall 2005
Instructor: Chris Jones/Brian Rex
This design study began with the exploration of space in two dimensions, then a series of extrusions to create three dimensional space. The final structure was fitted with a program for a cinema.




















